takeofficeなら掲載物件の仲介手数料は無料です

六本木Dスクエア

住所 東京都港区六本木2-4-5
交通 東京メトロ南北線六本木一丁目」 徒歩3分
東京メトロ日比谷線六本木」 徒歩7分
東京メトロ銀座線溜池山王」 徒歩8分
竣工 1975年09月 構造 SRC
規模 地上9階, 地下1階 耐震基準 新耐震基準
床構造 フリーアクセス 50mm 空調設備 個別空調
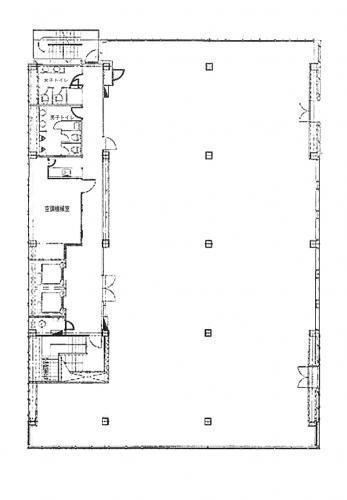
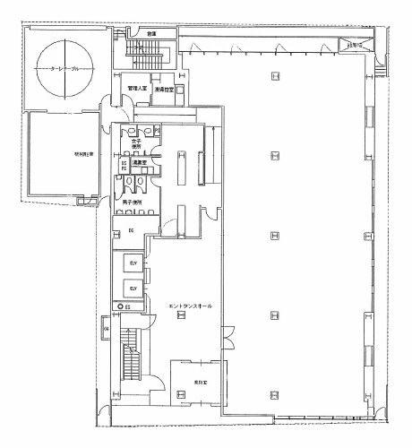
天井高 2600mm 基準階面積 143.91坪(475.74m2)
コンセント容量 50VA/m2 施工会社

最新の募集状況や類似物件については、
こちらにお問い合わせください。

六本木Dスクエア 外観

外観

内見やお見積りなどの各種お問い合わせ

全物件
仲介手数料無料
仲介から
入居工事まで
ワンストップで対応
経験豊富なスタッフが
スピード感をもって
対応

周辺での似た条件の物件

非公開物件 多数あり!

お問い合わせフォーム