takeofficeなら掲載物件の仲介手数料は無料です

ハリファックス六本木ビル

住所 東京都港区六本木3-16-26
交通 東京メトロ南北線六本木一丁目」 徒歩6分
東京メトロ日比谷線六本木」 徒歩6分
都営大江戸線麻布十番」 徒歩10分
竣工 1968年09月 構造 RC
規模 地上8階, 地下2階 耐震基準 旧耐震基準
床構造 フリーアクセス 50mm 空調設備 個別空調
天井高 2400mm 基準階面積 144.9坪(479.01m2)
コンセント容量 - 施工会社

最新の募集状況や類似物件については、
こちらにお問い合わせください。

ハリファックス六本木ビル 外観

外観

  • ハリファックス六本木ビル エントランス写真

    エントランス

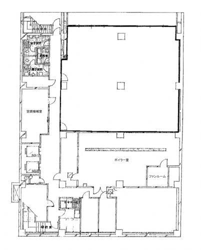
  • 基準階

    基準階

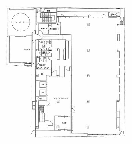
  • 1F

    1F

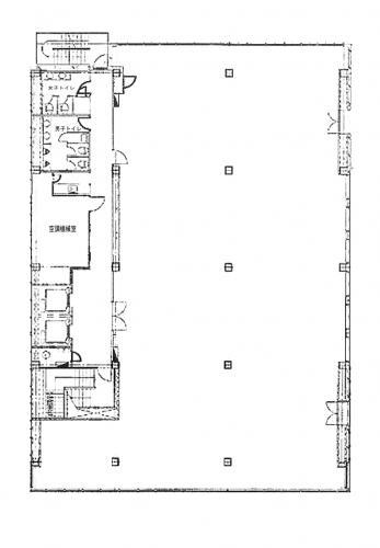
  • B1F

    B1F

建物パンフレット

建物パンフレットは作成時点のものであり、また計画段階のものも含まれる為、実際とは異なる場合がございます。

内見やお見積りなどの各種お問い合わせ

全物件
仲介手数料無料
仲介から
入居工事まで
ワンストップで対応
経験豊富なスタッフが
スピード感をもって
対応

周辺での似た条件の物件

非公開物件 多数あり!

お問い合わせフォーム