takeofficeなら掲載物件の仲介手数料は無料です

六本木第1ビル

住所 東京都港区六本木4-1-11
交通 東京メトロ日比谷線六本木」 徒歩4分
東京メトロ南北線六本木一丁目」 徒歩6分
東京メトロ千代田線赤坂」 徒歩13分
竣工 1966年04月 構造 RC
規模 地上6階 耐震基準 旧耐震基準
床構造 - 空調設備 個別空調
天井高 - 基準階面積 34.46坪(113.92m2)
コンセント容量 - 施工会社

最新の募集状況や類似物件については、
こちらにお問い合わせください。

六本木第1ビル 外観

外観

  • 六本木第1ビル エントランス写真

    エントランス

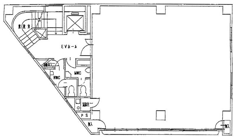
  • 基準階(2~6F)

    基準階(2~6F)

内見やお見積りなどの各種お問い合わせ

全物件
仲介手数料無料
仲介から
入居工事まで
ワンストップで対応
経験豊富なスタッフが
スピード感をもって
対応

周辺での似た条件の物件

非公開物件 多数あり!

お問い合わせフォーム