takeofficeなら掲載物件の仲介手数料は無料です

シュアラスタービル

住所 東京都港区六本木5-18-18
交通 東京メトロ南北線麻布十番」 徒歩6分
東京メトロ南北線六本木一丁目」 徒歩7分
東京メトロ日比谷線六本木」 徒歩8分
竣工 1975年05月 構造 SRC
規模 地上7階, 地下2階 耐震基準 旧耐震基準
床構造 フリーアクセス 50mm 空調設備 個別空調
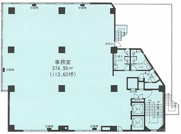
天井高 - 基準階面積 134.88坪(445.88m2)
コンセント容量 - 施工会社

最新の募集状況や類似物件については、
こちらにお問い合わせください。

シュアラスタービル 外観

外観

  • シュアラスタービル エントランス写真

    エントランス

  • 基準階(2~3F)

    基準階(2~3F)

  • 1F

    1F

  • 4F

    4F

  • 5F

    5F

  • 6F

    6F

  • 7F

    7F

内見やお見積りなどの各種お問い合わせ

全物件
仲介手数料無料
仲介から
入居工事まで
ワンストップで対応
経験豊富なスタッフが
スピード感をもって
対応

周辺での似た条件の物件

非公開物件 多数あり!

お問い合わせフォーム