takeofficeなら掲載物件の仲介手数料は無料です

全特六本木ビル(WEST棟)

住所 東京都港区六本木1-7-27
交通 東京メトロ南北線六本木一丁目」 徒歩1分
東京メトロ日比谷線六本木」 徒歩10分
竣工 1992年01月 構造 SRC
規模 地上9階, 地下2階 耐震基準 新耐震基準
床構造 フリーアクセス 50mm 空調設備 個別空調
天井高 2600mm 基準階面積 --
コンセント容量 - 施工会社

最新の募集状況や類似物件については、
こちらにお問い合わせください。

全特六本木ビル(WEST棟) 外観

外観

  • 全特六本木ビル(WEST棟) エントランス写真

    エントランス

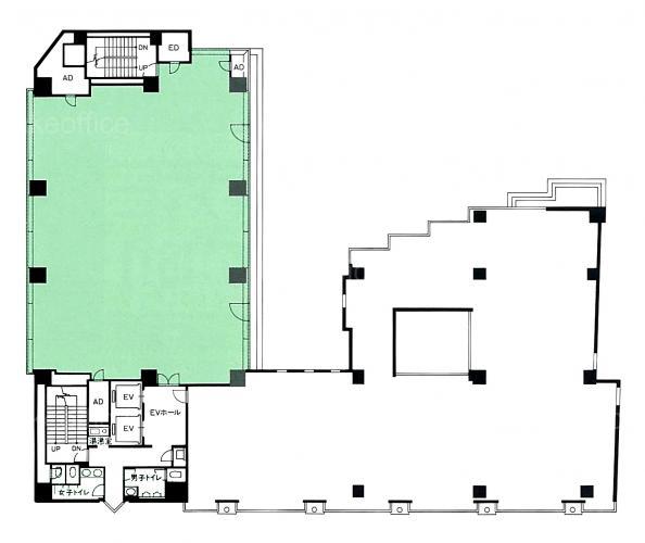
  • 3F

    3F

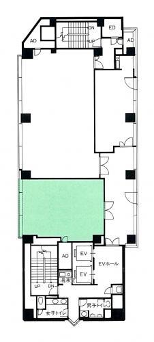
  • 1F

    1F

  • 2F

    2F

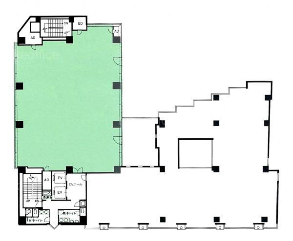
  • 4F

    4F

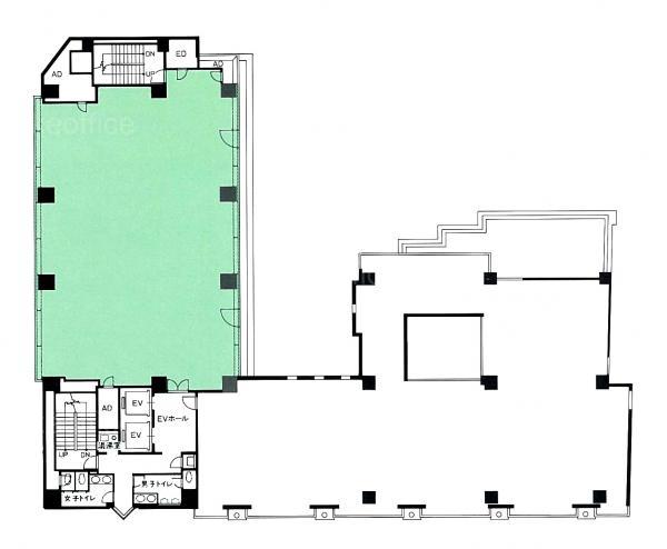
  • 5F

    5F

  • 6~7F

    6~7F

  • 8F

    8F

  • B1F

    B1F

内見やお見積りなどの各種お問い合わせ

全物件
仲介手数料無料
仲介から
入居工事まで
ワンストップで対応
経験豊富なスタッフが
スピード感をもって
対応

※「ご相談」と記載されている項目について
賃貸人が募集賃料条件を守秘義務の関係から明示していない場合に、【ご相談】と記載しております。
フリーレント(賃料免除)期間、使用面積、入居時期、テナント様の与信などによりご提示できる条件が若干変化いたします。
お手数ですが、詳細につきましては、上記よりお問い合わせください。

周辺での似た条件の物件

非公開物件 多数あり!

お問い合わせフォーム