takeofficeなら掲載物件の仲介手数料は無料です

六本木アートシェル(旧:(仮称)ART GATE ROPPONGI)

住所 東京都港区六本木7-4-4
交通 都営大江戸線六本木」 徒歩3分
東京メトロ千代田線乃木坂」 徒歩3分
竣工 2010年01月 構造 鉄骨造
規模 地上7階 耐震基準 新耐震基準
床構造 - 空調設備
天井高 4000mm 基準階面積 58.9坪(194.71m2)
コンセント容量 - 施工会社

最新の募集状況や類似物件については、
こちらにお問い合わせください。

六本木アートシェル(旧:(仮称)ART GATE ROPPONGI) 外観

外観

  • NOW PRINTING

    エントランス

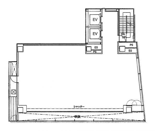
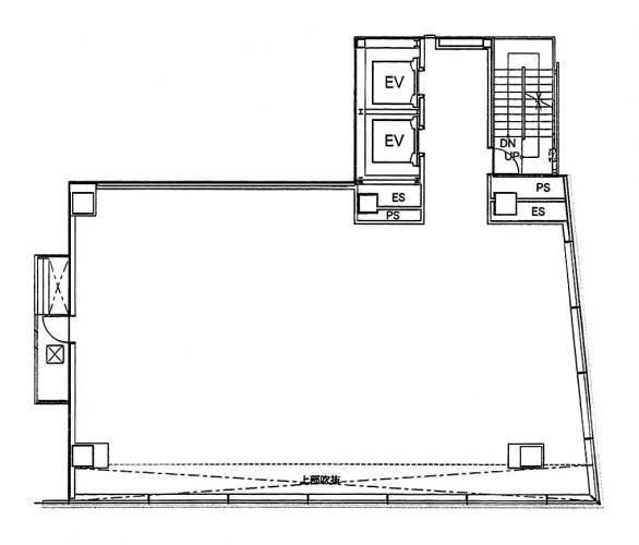
  • 基準階(3~5F)

    基準階(3~5F)

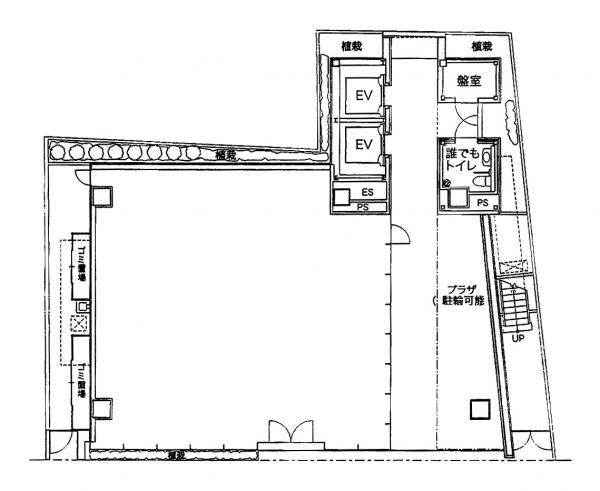
  • 1F

    1F

  • 2F

    2F

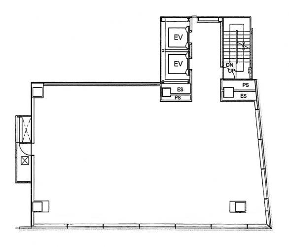
  • 6F

    6F

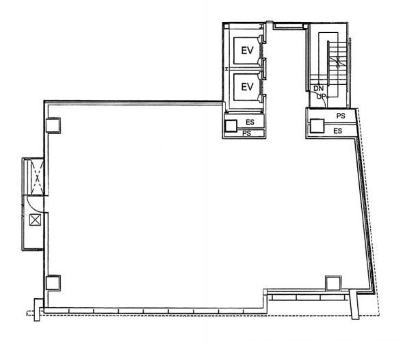
  • 7F

    7F

内見やお見積りなどの各種お問い合わせ

全物件
仲介手数料無料
仲介から
入居工事まで
ワンストップで対応
経験豊富なスタッフが
スピード感をもって
対応

周辺での似た条件の物件

非公開物件 多数あり!

お問い合わせフォーム