takeofficeなら掲載物件の仲介手数料は無料です

森口ビル

住所 東京都港区西麻布1-15-1
交通 東京メトロ千代田線乃木坂」 徒歩6分
東京メトロ日比谷線六本木」 徒歩10分
東京メトロ銀座線外苑前」 徒歩14分
竣工 1986年10月 構造 RC
規模 地上10階, 地下1階 耐震基準 新耐震基準
床構造 - 空調設備 -
天井高 - 基準階面積 41坪(137m2)
コンセント容量 - 施工会社

最新の募集状況や類似物件については、
こちらにお問い合わせください。

森口ビル 外観

外観

  • 森口ビル エントランス写真

    エントランス

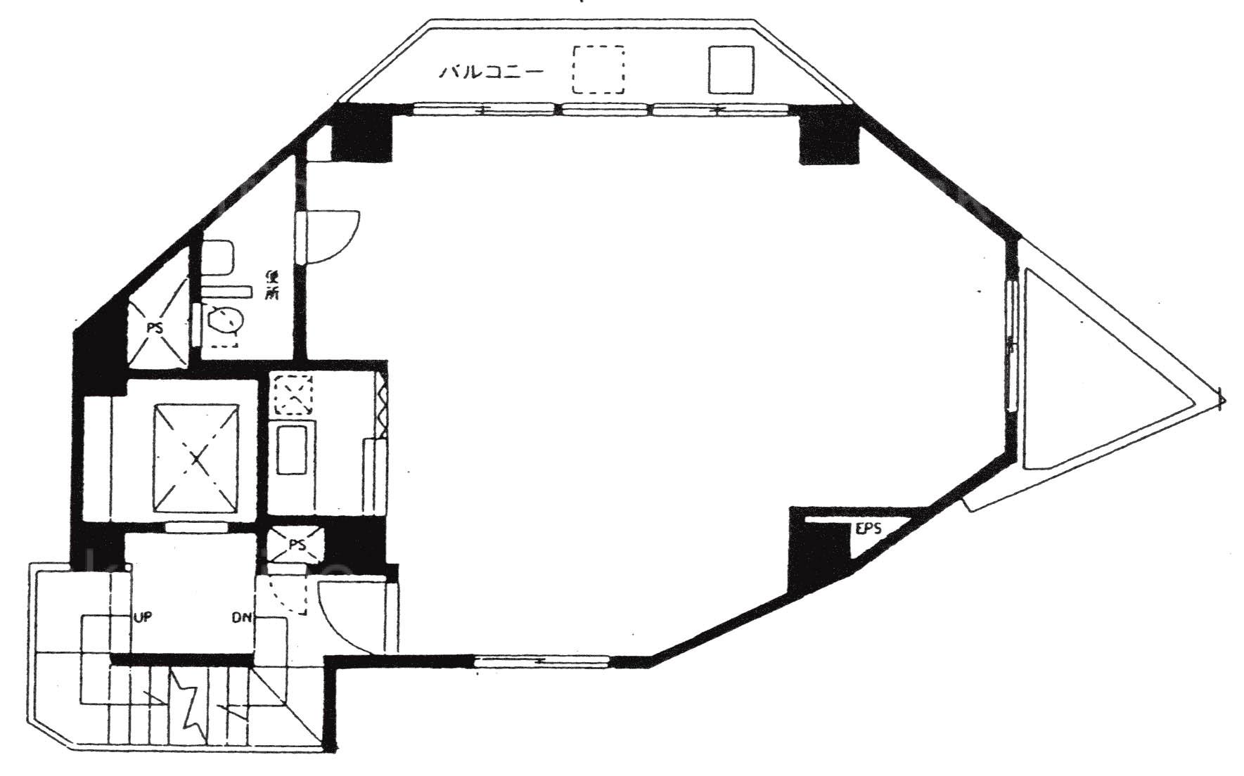
  • 基準階

    基準階

内見やお見積りなどの各種お問い合わせ

全物件
仲介手数料無料
仲介から
入居工事まで
ワンストップで対応
経験豊富なスタッフが
スピード感をもって
対応

周辺での似た条件の物件

非公開物件 多数あり!

お問い合わせフォーム