takeofficeなら掲載物件の仲介手数料は無料です

西麻布六本木通ビル(旧:西麻布28森ビル)

住所 東京都港区西麻布4-16-13
交通 東京メトロ日比谷線広尾」 徒歩11分
東京メトロ銀座線表参道」 徒歩12分
東京メトロ日比谷線六本木」 徒歩13分
竣工 1975年03月 構造 SRC
規模 地上11階, 地下1階 耐震基準 新耐震基準
床構造 - 空調設備 セントラル空調
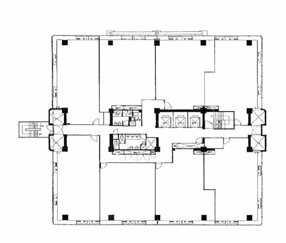
天井高 2400mm 基準階面積 257.95坪(852.73m2)
コンセント容量 47VA/m2 施工会社

最新の募集状況や類似物件については、
こちらにお問い合わせください。

西麻布六本木通ビル(旧:西麻布28森ビル) 外観

外観

  • 西麻布六本木通ビル(旧:西麻布28森ビル) エントランス写真

    エントランス

  • 基準階

    基準階

  • 10F

    10F

建物パンフレット

建物パンフレットは作成時点のものであり、また計画段階のものも含まれる為、実際とは異なる場合がございます。

内見やお見積りなどの各種お問い合わせ

全物件
仲介手数料無料
仲介から
入居工事まで
ワンストップで対応
経験豊富なスタッフが
スピード感をもって
対応

周辺での似た条件の物件

非公開物件 多数あり!

お問い合わせフォーム