takeofficeなら掲載物件の仲介手数料は無料です

井筒西麻布ビル

住所 東京都港区西麻布4-3-3
交通 東京メトロ日比谷線広尾」 徒歩7分
東京メトロ千代田線乃木坂」 徒歩12分
竣工 2005年12月 構造 RC
規模 地上6階, 地下1階 耐震基準 新耐震基準
床構造 フリーアクセス 50mm 空調設備 個別空調
天井高 2700mm 基準階面積 27.92坪(92.3m2)
コンセント容量 - 施工会社

最新の募集状況や類似物件については、
こちらにお問い合わせください。

井筒西麻布ビル 外観

外観

  • 井筒西麻布ビル エントランス写真

    エントランス

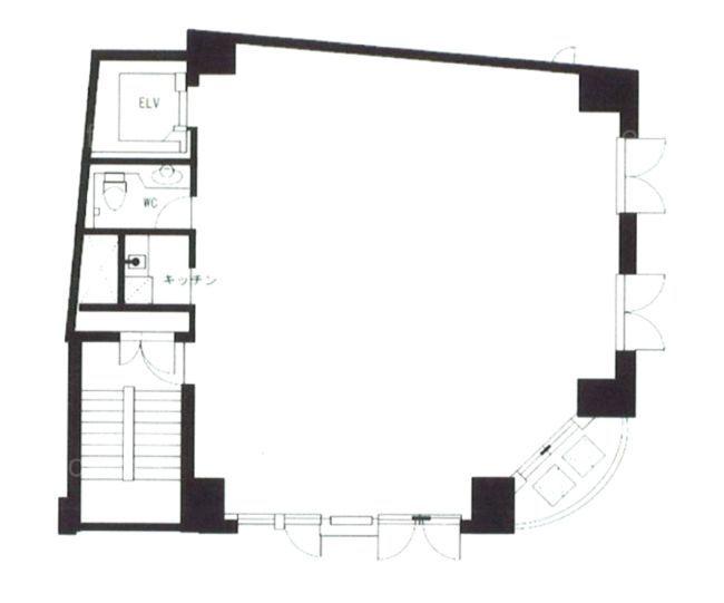
  • 基準階

    基準階

内見やお見積りなどの各種お問い合わせ

全物件
仲介手数料無料
仲介から
入居工事まで
ワンストップで対応
経験豊富なスタッフが
スピード感をもって
対応

周辺での似た条件の物件

非公開物件 多数あり!

お問い合わせフォーム