takeofficeなら掲載物件の仲介手数料は無料です

アドバンテック南青山ビル

住所 東京都港区南青山2-22-19
交通 東京メトロ銀座線外苑前」 徒歩1分
竣工 1978年09月 構造 SRC
規模 地上10階, 地下1階 耐震基準 旧耐震基準
床構造 フリーアクセス 50mm 空調設備 個別空調
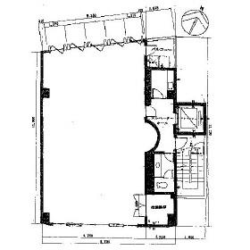
天井高 2600mm 基準階面積 30坪(100m2)
コンセント容量 - 施工会社 黒川建設

最新の募集状況や類似物件については、
こちらにお問い合わせください。

アドバンテック南青山ビル 外観

外観

内見やお見積りなどの各種お問い合わせ

全物件
仲介手数料無料
仲介から
入居工事まで
ワンストップで対応
経験豊富なスタッフが
スピード感をもって
対応

※「ご相談」と記載されている項目について
賃貸人が募集賃料条件を守秘義務の関係から明示していない場合に、【ご相談】と記載しております。
フリーレント(賃料免除)期間、使用面積、入居時期、テナント様の与信などによりご提示できる条件が若干変化いたします。
お手数ですが、詳細につきましては、上記よりお問い合わせください。

周辺での似た条件の物件

非公開物件 多数あり!

お問い合わせフォーム