takeofficeなら掲載物件の仲介手数料は無料です

リビエラ南青山ビル

住所 東京都港区南青山3-3-3
交通 東京メトロ銀座線外苑前」 徒歩4分
東京メトロ銀座線表参道」 徒歩7分
竣工 1989年11月 構造 SRC+RC
規模 地上6階, 地下3階 耐震基準 新耐震基準
床構造 フリーアクセス 60mm 空調設備 セントラル空調
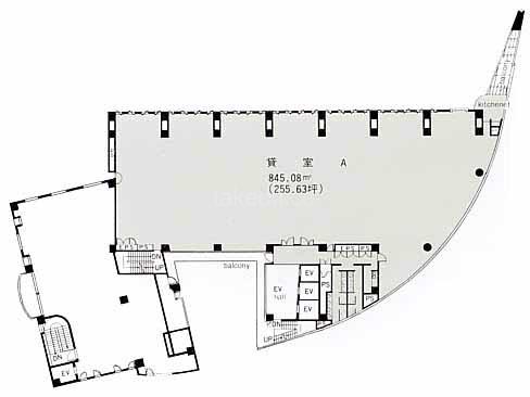
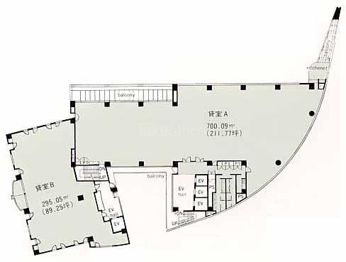
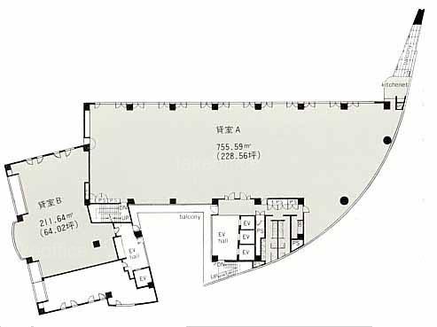
天井高 2600mm 基準階面積 301坪(995m2)
コンセント容量 40VA/m2 施工会社

最新の募集状況や類似物件については、
こちらにお問い合わせください。

リビエラ南青山ビル 外観

外観

内見やお見積りなどの各種お問い合わせ

全物件
仲介手数料無料
仲介から
入居工事まで
ワンストップで対応
経験豊富なスタッフが
スピード感をもって
対応

周辺での似た条件の物件

非公開物件 多数あり!

お問い合わせフォーム