takeofficeなら掲載物件の仲介手数料は無料です

フジビル28

住所 東京都港区北青山2-7-26
交通 東京メトロ銀座線外苑前」 徒歩2分
東京メトロ銀座線青山一丁目」 徒歩10分
竣工 1987年07月 構造 SRC
規模 地上10階, 地下1階 耐震基準 新耐震基準
床構造 フリーアクセス 50mm 空調設備 個別空調
天井高 2400mm 基準階面積 148.6坪(491.24m2)
コンセント容量 - 施工会社

最新の募集状況や類似物件については、
こちらにお問い合わせください。

フジビル28 外観

外観

  • フジビル28 エントランス写真

    エントランス

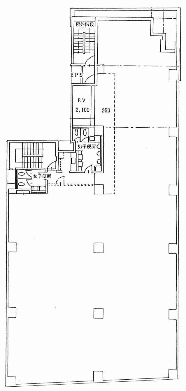
  • 基準階(2~3F)

    基準階(2~3F)

  • 4F

    4F

  • 7F

    7F

  • 5F

    5F

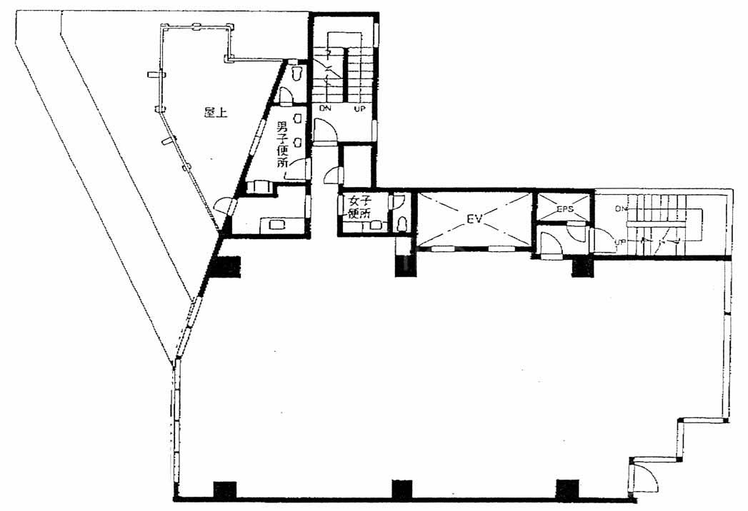
  • 9F

    9F

内見やお見積りなどの各種お問い合わせ

全物件
仲介手数料無料
仲介から
入居工事まで
ワンストップで対応
経験豊富なスタッフが
スピード感をもって
対応

周辺での似た条件の物件

非公開物件 多数あり!

お問い合わせフォーム