takeofficeなら掲載物件の仲介手数料は無料です

JRE青山クリスタルビル

住所 東京都港区北青山3-5-12
交通 東京メトロ半蔵門線表参道」 徒歩3分
東京メトロ銀座線外苑前」 徒歩8分
竣工 1982年12月 構造 SRC
規模 地上10階, 地下4階 耐震基準 新耐震基準
床構造 フリーアクセス 70mm 空調設備 個別空調
天井高 2700mm 基準階面積 117.13坪(387.21m2)
コンセント容量 - 施工会社

最新の募集状況や類似物件については、
こちらにお問い合わせください。

JRE青山クリスタルビル 外観

外観

  • JRE青山クリスタルビル エントランス写真

    エントランス

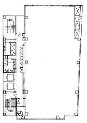
  • 基準階(3~8F)

    基準階(3~8F)

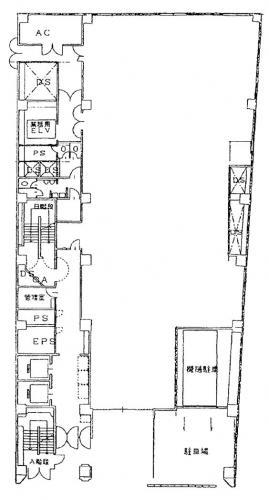
  • 1F

    1F

内見やお見積りなどの各種お問い合わせ

全物件
仲介手数料無料
仲介から
入居工事まで
ワンストップで対応
経験豊富なスタッフが
スピード感をもって
対応

周辺での似た条件の物件

非公開物件 多数あり!

お問い合わせフォーム