takeofficeなら掲載物件の仲介手数料は無料です

はる木ビル

住所 東京都港区北青山3-5-17
交通 東京メトロ銀座線表参道」 徒歩3分
東京メトロ銀座線外苑前」 徒歩9分
東京メトロ千代田線明治神宮前」 徒歩11分
竣工 1995年11月 構造 SRC
規模 地上9階, 地下1階 耐震基準 新耐震基準
床構造 - 空調設備 個別空調
天井高 2500mm 基準階面積 42.14坪(139.31m2)
コンセント容量 - 施工会社

最新の募集状況や類似物件については、
こちらにお問い合わせください。

はる木ビル 外観

外観

  • NOW PRINTING

    エントランス

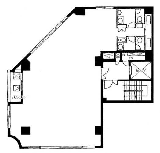
  • 基準階(3~5F)

    基準階(3~5F)

内見やお見積りなどの各種お問い合わせ

全物件
仲介手数料無料
仲介から
入居工事まで
ワンストップで対応
経験豊富なスタッフが
スピード感をもって
対応

周辺での似た条件の物件

非公開物件 多数あり!

お問い合わせフォーム