takeofficeなら掲載物件の仲介手数料は無料です

フォレストヒルズウエスト

住所 東京都港区南青山4-18-16
交通 東京メトロ半蔵門線表参道」 徒歩6分
竣工 1992年11月 構造 RC
規模 地上3階, 地下2階 耐震基準 新耐震基準
床構造 フリーアクセス 65mm 空調設備 個別空調
天井高 - 基準階面積 -(76.03m2)
コンセント容量 - 施工会社

最新の募集状況や類似物件については、
こちらにお問い合わせください。

フォレストヒルズウエスト 外観

外観

  • NOW PRINTING

    エントランス

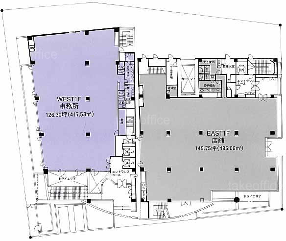
  • 1F

    1F

  • 2F

    2F

  • 3F

    3F

内見やお見積りなどの各種お問い合わせ

全物件
仲介手数料無料
仲介から
入居工事まで
ワンストップで対応
経験豊富なスタッフが
スピード感をもって
対応

周辺での似た条件の物件

非公開物件 多数あり!

お問い合わせフォーム