takeofficeなら掲載物件の仲介手数料は無料です

スプライン青山東急ビル

住所 東京都港区南青山3-1-3
交通 東京メトロ銀座線外苑前」 徒歩3分
東京メトロ半蔵門線表参道」 徒歩7分
竣工 2012年06月 構造 鉄骨造
規模 地上8階, 地下2階 耐震基準 新耐震基準
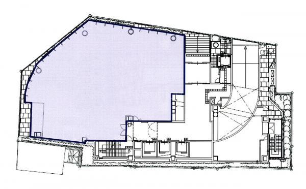
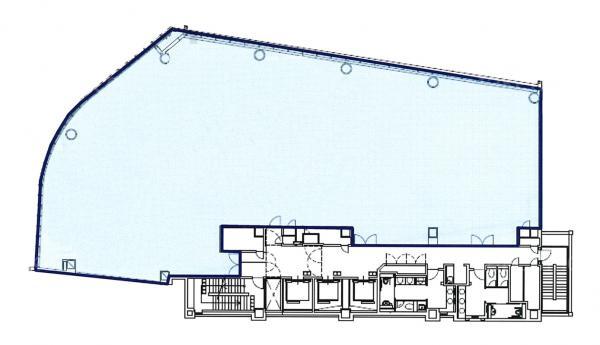
床構造 フリーアクセス 100mm 空調設備 個別空調
天井高 2800mm 基準階面積 193.77坪(640.56m2)
コンセント容量 - 施工会社 清水建設

最新の募集状況や類似物件については、
こちらにお問い合わせください。

スプライン青山東急ビル 外観

外観

建物パンフレット

建物パンフレットは作成時点のものであり、また計画段階のものも含まれる為、実際とは異なる場合がございます。

内見やお見積りなどの各種お問い合わせ

全物件
仲介手数料無料
仲介から
入居工事まで
ワンストップで対応
経験豊富なスタッフが
スピード感をもって
対応

周辺での似た条件の物件

非公開物件 多数あり!

お問い合わせフォーム