takeofficeなら掲載物件の仲介手数料は無料です

新青山東急ビル

住所 東京都港区南青山3-11-13
交通 東京メトロ銀座線表参道」 徒歩3分
竣工 2015年01月 構造 鉄骨造
規模 地上11階, 地下1階 耐震基準 新耐震基準
床構造 フリーアクセス 100mm 空調設備 個別空調
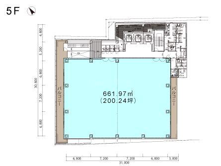
天井高 2800mm 基準階面積 200.24坪(661.95m2)
コンセント容量 60VA/m2 施工会社 鹿島建設

最新の募集状況や類似物件については、
こちらにお問い合わせください。

新青山東急ビル 外観

外観

建物パンフレット

建物パンフレットは作成時点のものであり、また計画段階のものも含まれる為、実際とは異なる場合がございます。

内見やお見積りなどの各種お問い合わせ

全物件
仲介手数料無料
仲介から
入居工事まで
ワンストップで対応
経験豊富なスタッフが
スピード感をもって
対応

周辺での似た条件の物件

非公開物件 多数あり!

お問い合わせフォーム