takeofficeなら掲載物件の仲介手数料は無料です

保坂興産ビル

住所 東京都港区芝浦2-17-13
交通 JR山手線田町」 徒歩7分
都営三田線三田」 徒歩9分
ゆりかもめ芝浦ふ頭」 徒歩10分
竣工 1984年 構造 鉄骨造
規模 地上7階, 地下0階 耐震基準 新耐震基準
床構造 - 空調設備 個別空調
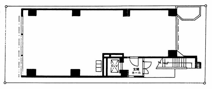
天井高 - 基準階面積 33.01坪(109.12m2)
コンセント容量 - 施工会社

最新の募集状況や類似物件については、
こちらにお問い合わせください。

保坂興産ビル 外観

外観

  • NOW PRINTING

    エントランス

  • 基準階

    基準階

  • 1F

    1F

内見やお見積りなどの各種お問い合わせ

全物件
仲介手数料無料
仲介から
入居工事まで
ワンストップで対応
経験豊富なスタッフが
スピード感をもって
対応

周辺での似た条件の物件

非公開物件 多数あり!

お問い合わせフォーム