takeofficeなら掲載物件の仲介手数料は無料です

住友不動産田町駅前ビル

住所 東京都港区芝浦3-1-35
交通 JR山手線田町」 徒歩1分
都営浅草線三田」 徒歩3分
竣工 2002年05月 構造 鉄骨造
規模 地上8階, 地下1階 耐震基準 新耐震基準
床構造 フリーアクセス 100mm 空調設備 個別空調
天井高 2800mm 基準階面積 231.79坪(766.25m2)
コンセント容量 85VA/m2 施工会社

最新の募集状況や類似物件については、
こちらにお問い合わせください。

住友不動産田町駅前ビル 外観

外観

  • 住友不動産田町駅前ビル エントランス写真

    エントランス

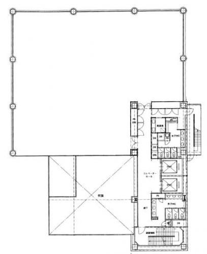
  • 基準階(3~8F)

    基準階(3~8F)

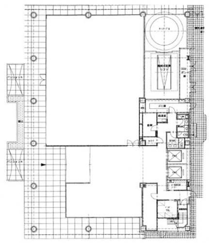
  • 1F

    1F

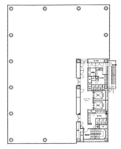
  • 2F

    2F

内見やお見積りなどの各種お問い合わせ

全物件
仲介手数料無料
仲介から
入居工事まで
ワンストップで対応
経験豊富なスタッフが
スピード感をもって
対応

周辺での似た条件の物件

非公開物件 多数あり!

お問い合わせフォーム