takeofficeなら掲載物件の仲介手数料は無料です

コトヒラビル

住所 東京都港区芝浦4-4-34
交通 JR山手線田町」 徒歩7分
都営三田線三田」 徒歩8分
竣工 1994年01月 構造 RC
規模 地上8階 耐震基準 新耐震基準
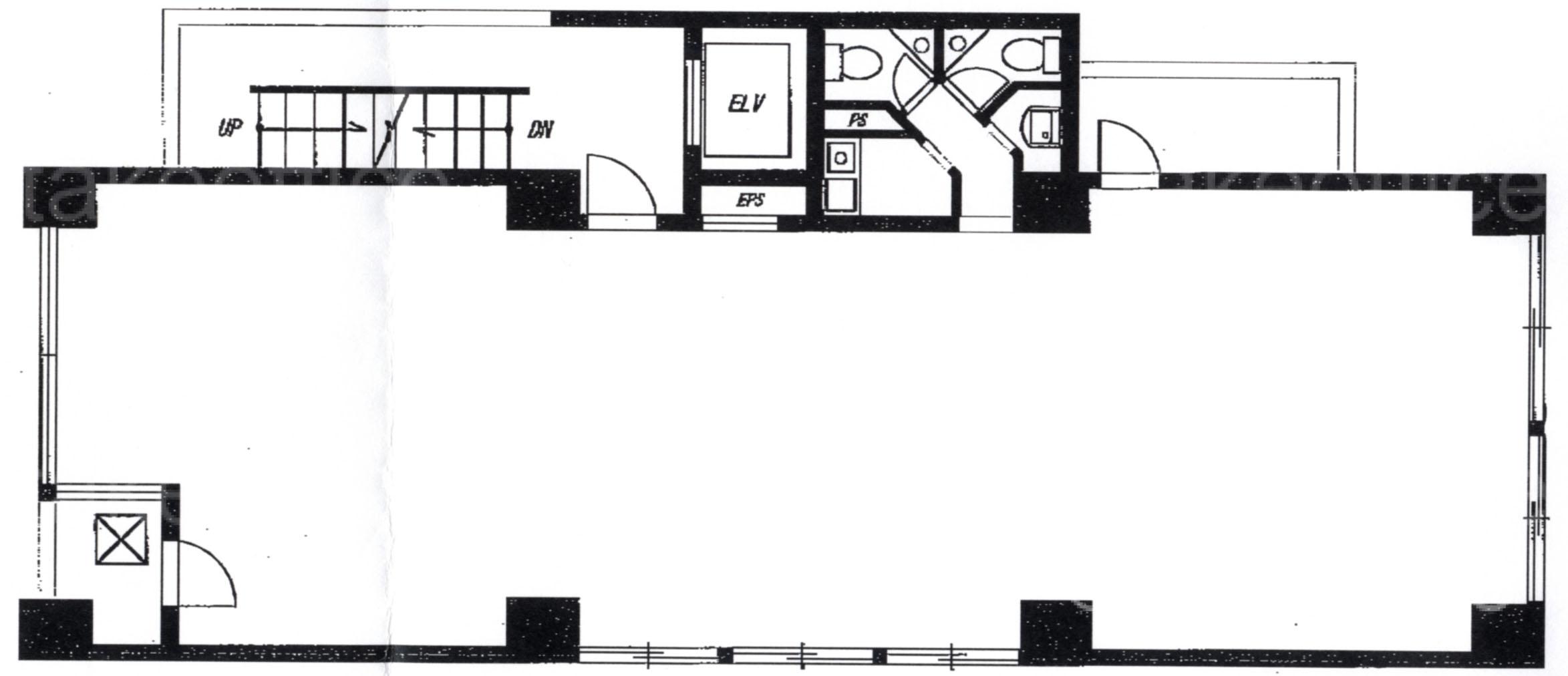
床構造 - 空調設備 個別空調
天井高 3000mm 基準階面積 35.87坪(118.58m2)
コンセント容量 - 施工会社

最新の募集状況や類似物件については、
こちらにお問い合わせください。

コトヒラビル 外観

外観

  • NOW PRINTING

    エントランス

  • 3F

    3F

内見やお見積りなどの各種お問い合わせ

全物件
仲介手数料無料
仲介から
入居工事まで
ワンストップで対応
経験豊富なスタッフが
スピード感をもって
対応

周辺での似た条件の物件

非公開物件 多数あり!

お問い合わせフォーム