takeofficeなら掲載物件の仲介手数料は無料です

横河ビル

住所 東京都港区芝浦4-4-44
交通 JR山手線田町」 徒歩8分
都営三田線三田」 徒歩9分
都営浅草線泉岳寺」 徒歩12分
竣工 1993年08月 構造 RC+鉄骨造
規模 地上8階, 地下1階 耐震基準 新耐震基準
床構造 フリーアクセス 50mm 空調設備 個別空調
天井高 2590mm 基準階面積 136.41坪(450.94m2)
コンセント容量 - 施工会社

最新の募集状況や類似物件については、
こちらにお問い合わせください。

横河ビル 外観

外観

  • NOW PRINTING

    エントランス

  • 基準階(6~8F)

    基準階(6~8F)

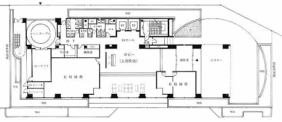
  • 1F

    1F

  • 5F

    5F

内見やお見積りなどの各種お問い合わせ

全物件
仲介手数料無料
仲介から
入居工事まで
ワンストップで対応
経験豊富なスタッフが
スピード感をもって
対応

周辺での似た条件の物件

非公開物件 多数あり!

お問い合わせフォーム