takeofficeなら掲載物件の仲介手数料は無料です

一星芝ビルディング

住所 東京都港区芝2-2-14
交通 都営三田線芝公園」 徒歩5分
JR京浜東北線浜松町」 徒歩6分
都営大江戸線大門」 徒歩6分
竣工 1999年03月 構造 鉄骨造
規模 地上8階 耐震基準 新耐震基準
床構造 フリーアクセス 100mm 空調設備 個別空調
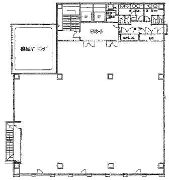
天井高 2800mm 基準階面積 122.36坪(404.5m2)
コンセント容量 50VA/m2 施工会社

最新の募集状況や類似物件については、
こちらにお問い合わせください。

一星芝ビルディング 外観

外観

内見やお見積りなどの各種お問い合わせ

全物件
仲介手数料無料
仲介から
入居工事まで
ワンストップで対応
経験豊富なスタッフが
スピード感をもって
対応

周辺での似た条件の物件

非公開物件 多数あり!

お問い合わせフォーム