takeofficeなら掲載物件の仲介手数料は無料です

坂詰ビル

住所 東京都港区芝2-5-22
交通 都営三田線芝公園」 徒歩3分
都営大江戸線大門」 徒歩8分
都営浅草線三田」 徒歩8分
竣工 1988年11月 構造 鉄骨造
規模 地上5階 耐震基準 新耐震基準
床構造 - 空調設備 -
天井高 - 基準階面積 --
コンセント容量 - 施工会社

最新の募集状況や類似物件については、
こちらにお問い合わせください。

坂詰ビル 外観

外観

  • NOW PRINTING

    エントランス

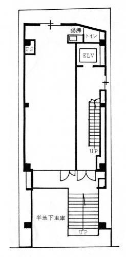
  • 3F

    3F

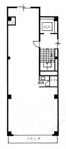
  • 1F

    1F

内見やお見積りなどの各種お問い合わせ

全物件
仲介手数料無料
仲介から
入居工事まで
ワンストップで対応
経験豊富なスタッフが
スピード感をもって
対応

周辺での似た条件の物件

非公開物件 多数あり!

お問い合わせフォーム