takeofficeなら掲載物件の仲介手数料は無料です

芝園ビル

住所 東京都港区芝2-7-2
交通 都営三田線芝公園」 徒歩1分
JR京浜東北線浜松町」 徒歩10分
JR山手線田町」 徒歩10分
竣工 1973年11月 構造 RC+SRC
規模 地上8階 耐震基準 旧耐震基準
床構造 - 空調設備 個別空調
天井高 - 基準階面積 49.57坪(163.87m2)
コンセント容量 - 施工会社

最新の募集状況や類似物件については、
こちらにお問い合わせください。

芝園ビル 外観

外観

  • NOW PRINTING

    エントランス

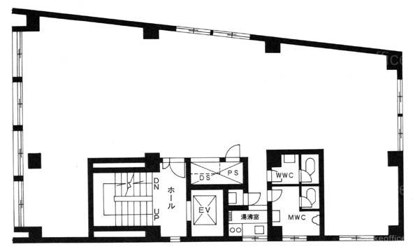
  • 基準階(3~5F)

    基準階(3~5F)

内見やお見積りなどの各種お問い合わせ

全物件
仲介手数料無料
仲介から
入居工事まで
ワンストップで対応
経験豊富なスタッフが
スピード感をもって
対応

周辺での似た条件の物件

非公開物件 多数あり!

お問い合わせフォーム