takeofficeなら掲載物件の仲介手数料は無料です

ファインラック芝

住所 東京都港区芝2-30-6
交通 都営三田線芝公園」 徒歩4分
都営三田線三田」 徒歩4分
JR山手線田町」 徒歩10分
竣工 1990年04月 構造 SRC
規模 地上8階 耐震基準 新耐震基準
床構造 - 空調設備 -
天井高 - 基準階面積 39.6坪(130.91m2)
コンセント容量 - 施工会社

最新の募集状況や類似物件については、
こちらにお問い合わせください。

ファインラック芝 外観

外観

  • ファインラック芝 エントランス写真

    エントランス

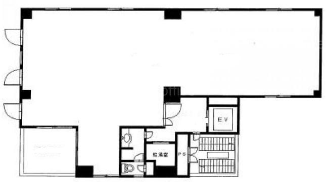
  • 基準階

    基準階

内見やお見積りなどの各種お問い合わせ

全物件
仲介手数料無料
仲介から
入居工事まで
ワンストップで対応
経験豊富なスタッフが
スピード感をもって
対応

周辺での似た条件の物件

非公開物件 多数あり!

お問い合わせフォーム