takeofficeなら掲載物件の仲介手数料は無料です

オルビス芝パークビル

住所 東京都港区芝3-5-7
交通 都営三田線芝公園」 徒歩2分
都営三田線三田」 徒歩7分
竣工 1992年02月 構造 鉄骨造
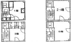
規模 地上5階 耐震基準 新耐震基準
床構造 - 空調設備 個別空調
天井高 - 基準階面積 --
コンセント容量 - 施工会社

最新の募集状況や類似物件については、
こちらにお問い合わせください。

オルビス芝パークビル 外観

外観

  • オルビス芝パークビル エントランス写真

    エントランス

内見やお見積りなどの各種お問い合わせ

全物件
仲介手数料無料
仲介から
入居工事まで
ワンストップで対応
経験豊富なスタッフが
スピード感をもって
対応

周辺での似た条件の物件

非公開物件 多数あり!

お問い合わせフォーム