takeofficeなら掲載物件の仲介手数料は無料です

クリエート三田ビル

住所 東京都港区芝3-17-15
交通 都営大江戸線赤羽橋」 徒歩3分
都営三田線三田」 徒歩8分
JR山手線田町」 徒歩10分
竣工 1982年06月 構造 SRC
規模 地上14階, 地下1階 耐震基準 新耐震基準
床構造 フリーアクセス 50mm 空調設備 個別空調
天井高 2400mm 基準階面積 381坪(1260m2)
コンセント容量 - 施工会社

最新の募集状況や類似物件については、
こちらにお問い合わせください。

クリエート三田ビル 外観

外観

  • クリエート三田ビル エントランス写真

    エントランス

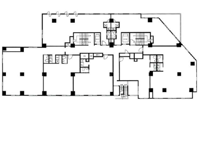
  • 3F

    3F

内見やお見積りなどの各種お問い合わせ

全物件
仲介手数料無料
仲介から
入居工事まで
ワンストップで対応
経験豊富なスタッフが
スピード感をもって
対応

周辺での似た条件の物件

非公開物件 多数あり!

お問い合わせフォーム