takeofficeなら掲載物件の仲介手数料は無料です

芝KIビル

住所 東京都港区芝4-2-8
交通 都営三田線三田」 徒歩4分
都営三田線芝公園」 徒歩6分
JR山手線田町」 徒歩7分
竣工 1989年11月 構造 鉄骨造
規模 地上5階 耐震基準 新耐震基準
床構造 - 空調設備 個別空調
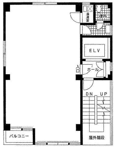
天井高 - 基準階面積 16坪(52m2)
コンセント容量 - 施工会社

最新の募集状況や類似物件については、
こちらにお問い合わせください。

芝KIビル 外観

外観

  • 芝KIビル エントランス写真

    エントランス

内見やお見積りなどの各種お問い合わせ

全物件
仲介手数料無料
仲介から
入居工事まで
ワンストップで対応
経験豊富なスタッフが
スピード感をもって
対応

周辺での似た条件の物件

非公開物件 多数あり!

お問い合わせフォーム