takeofficeなら掲載物件の仲介手数料は無料です

田町日工ビル

住所 東京都港区芝5-29-14
交通 JR京浜東北線田町」 徒歩3分
都営三田線三田」 徒歩4分
都営三田線芝公園」 徒歩11分
竣工 2010年06月 構造 鉄骨造+SRC
規模 地上10階, 地下1階 耐震基準 新耐震基準
床構造 フリーアクセス 50mm 空調設備 個別空調
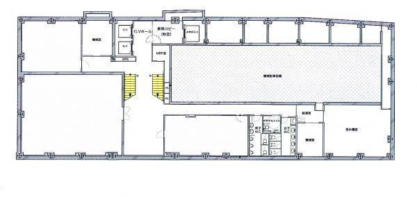
天井高 2795mm 基準階面積 180.25坪(595.87m2)
コンセント容量 60VA/m2 施工会社 熊谷組

最新の募集状況や類似物件については、
こちらにお問い合わせください。

田町日工ビル 外観

外観

建物パンフレット

建物パンフレットは作成時点のものであり、また計画段階のものも含まれる為、実際とは異なる場合がございます。

内見やお見積りなどの各種お問い合わせ

全物件
仲介手数料無料
仲介から
入居工事まで
ワンストップで対応
経験豊富なスタッフが
スピード感をもって
対応

周辺での似た条件の物件

非公開物件 多数あり!

お問い合わせフォーム