takeofficeなら掲載物件の仲介手数料は無料です

旭ビルディング

住所 東京都港区芝5-29-19
交通 都営浅草線三田」 徒歩4分
JR京浜東北線田町」 徒歩5分
竣工 1972年08月 構造 SRC
規模 地上9階, 地下1階 耐震基準 旧耐震基準
床構造 フリーアクセス 40mm 空調設備 個別空調
天井高 2350mm 基準階面積 129坪(426m2)
コンセント容量 - 施工会社

最新の募集状況や類似物件については、
こちらにお問い合わせください。

旭ビルディング 外観

外観

  • 旭ビルディング エントランス写真

    エントランス

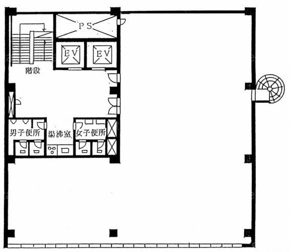
  • 基準階(3~4F)

    基準階(3~4F)

  • 5F

    5F

  • 6F

    6F

  • 7~9F

    7~9F

内見やお見積りなどの各種お問い合わせ

全物件
仲介手数料無料
仲介から
入居工事まで
ワンストップで対応
経験豊富なスタッフが
スピード感をもって
対応

周辺での似た条件の物件

非公開物件 多数あり!

お問い合わせフォーム