takeofficeなら掲載物件の仲介手数料は無料です

第1田町ビル

住所 東京都港区芝5-33-8
交通 都営浅草線三田」 徒歩1分
JR山手線田町」 徒歩2分
竣工 1966年05月 構造 SRC
規模 地上9階, 地下3階 耐震基準 旧耐震基準
床構造 - 空調設備 -
天井高 - 基準階面積 888.31坪(2936.55m2)
コンセント容量 - 施工会社

最新の募集状況や類似物件については、
こちらにお問い合わせください。

第1田町ビル 外観

外観

  • 第1田町ビル エントランス写真

    エントランス

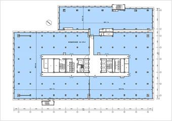
  • 基準階

    基準階

内見やお見積りなどの各種お問い合わせ

全物件
仲介手数料無料
仲介から
入居工事まで
ワンストップで対応
経験豊富なスタッフが
スピード感をもって
対応

周辺での似た条件の物件

非公開物件 多数あり!

お問い合わせフォーム