takeofficeなら掲載物件の仲介手数料は無料です

ジョイヴィレッジ芝公園

住所 東京都港区芝3-15-5
交通 都営大江戸線赤羽橋」 徒歩3分
都営三田線芝公園」 徒歩6分
都営浅草線三田」 徒歩13分
竣工 2008年04月 構造 SRC
規模 地上12階 耐震基準 新耐震基準
床構造 フリーアクセス 空調設備 -
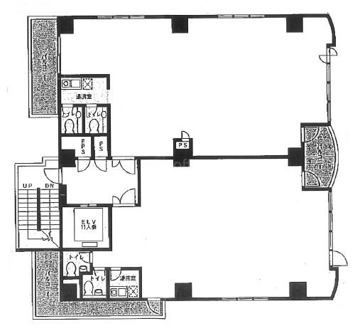
天井高 - 基準階面積 54.74坪(180.96m2)
コンセント容量 - 施工会社

最新の募集状況や類似物件については、
こちらにお問い合わせください。

ジョイヴィレッジ芝公園 外観

外観

内見やお見積りなどの各種お問い合わせ

全物件
仲介手数料無料
仲介から
入居工事まで
ワンストップで対応
経験豊富なスタッフが
スピード感をもって
対応

周辺での似た条件の物件

非公開物件 多数あり!

お問い合わせフォーム