takeofficeなら掲載物件の仲介手数料は無料です

グランディール芝

住所 東京都港区芝3-18-10
交通 都営三田線芝公園」 徒歩6分
都営大江戸線赤羽橋」 徒歩6分
都営三田線三田」 徒歩8分
竣工 1992年07月 構造 RC
規模 地上5階, 地下0階 耐震基準 新耐震基準
床構造 - 空調設備 個別空調
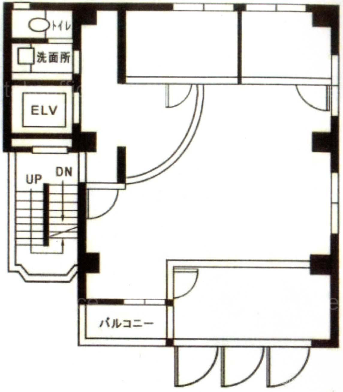
天井高 - 基準階面積 27.7坪(91.57m2)
コンセント容量 - 施工会社

最新の募集状況や類似物件については、
こちらにお問い合わせください。

NOW PRINTING

外観

  • NOW PRINTING

    エントランス

  • 3F

    3F

内見やお見積りなどの各種お問い合わせ

全物件
仲介手数料無料
仲介から
入居工事まで
ワンストップで対応
経験豊富なスタッフが
スピード感をもって
対応

周辺での似た条件の物件

非公開物件 多数あり!

お問い合わせフォーム