takeofficeなら掲載物件の仲介手数料は無料です

住友芝公園ビル

住所 東京都港区芝2-7-17
交通 都営三田線芝公園」 徒歩1分
都営浅草線三田」 徒歩5分
竣工 1985年12月 構造 SRC
規模 地上15階, 地下1階 耐震基準 新耐震基準
床構造 フリーアクセス 70mm 空調設備 セントラル空調
天井高 2650mm 基準階面積 259.27坪(857.09m2)
コンセント容量 - 施工会社

最新の募集状況や類似物件については、
こちらにお問い合わせください。

住友芝公園ビル 外観

外観

  • NOW PRINTING

    エントランス

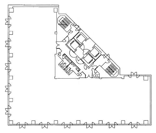
  • 基準階(2~11F)

    基準階(2~11F)

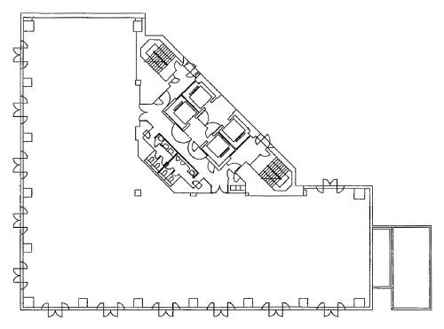
  • 1F

    1F

  • 12~15F

    12~15F

内見やお見積りなどの各種お問い合わせ

全物件
仲介手数料無料
仲介から
入居工事まで
ワンストップで対応
経験豊富なスタッフが
スピード感をもって
対応

周辺での似た条件の物件

非公開物件 多数あり!

お問い合わせフォーム