takeofficeなら掲載物件の仲介手数料は無料です

三田ソネットビル

住所 東京都港区三田1-1-15
交通 都営大江戸線麻布十番」 徒歩1分
竣工 1986年09月 構造 SRC
規模 地上6階, 地下1階 耐震基準 新耐震基準
床構造 フリーアクセス 50mm 空調設備 フロア別空調
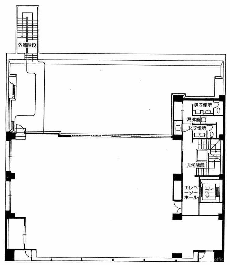
天井高 2500mm 基準階面積 114.3坪(377.85m2)
コンセント容量 - 施工会社

最新の募集状況や類似物件については、
こちらにお問い合わせください。

三田ソネットビル 外観

外観

内見やお見積りなどの各種お問い合わせ

全物件
仲介手数料無料
仲介から
入居工事まで
ワンストップで対応
経験豊富なスタッフが
スピード感をもって
対応

周辺での似た条件の物件

非公開物件 多数あり!

お問い合わせフォーム