takeofficeなら掲載物件の仲介手数料は無料です

リーラヒジリザカ

住所 東京都港区三田3-4-10
交通 都営浅草線三田」 徒歩6分
JR山手線田町」 徒歩7分
都営大江戸線赤羽橋」 徒歩13分
竣工 1991年12月 構造 SRC
規模 地上7階, 地下1階 耐震基準 新耐震基準
床構造 フリーアクセス 50mm 空調設備 個別空調
天井高 2480mm 基準階面積 172.33坪(569.69m2)
コンセント容量 - 施工会社

最新の募集状況や類似物件については、
こちらにお問い合わせください。

リーラヒジリザカ 外観

外観

  • リーラヒジリザカ エントランス写真

    エントランス

  • 基準階(3~5F)

    基準階(3~5F)

  • 1F

    1F

  • 2F

    2F

  • 6F

    6F

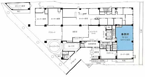
  • 7F

    7F

内見やお見積りなどの各種お問い合わせ

全物件
仲介手数料無料
仲介から
入居工事まで
ワンストップで対応
経験豊富なスタッフが
スピード感をもって
対応

周辺での似た条件の物件

非公開物件 多数あり!

お問い合わせフォーム