takeofficeなら掲載物件の仲介手数料は無料です

三田三好ビル

住所 東京都港区三田3-9-7
交通 都営浅草線泉岳寺」 徒歩3分
JR山手線田町」 徒歩10分
竣工 1985年05月 構造 SRC
規模 地上8階, 地下2階 耐震基準 新耐震基準
床構造 フリーアクセス 65mm 空調設備 個別空調
天井高 2430mm 基準階面積 122.51坪(404.99m2)
コンセント容量 70VA/m2 施工会社

最新の募集状況や類似物件については、
こちらにお問い合わせください。

三田三好ビル 外観

外観

  • 三田三好ビル エントランス写真

    エントランス

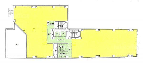
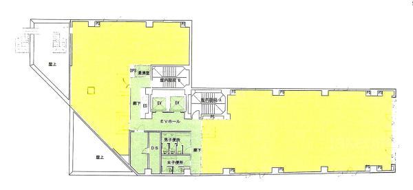
  • 3F

    3F

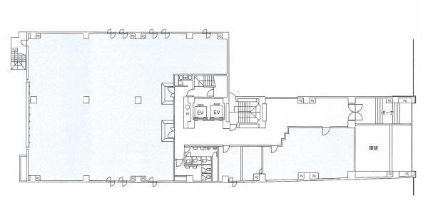
  • 1F

    1F

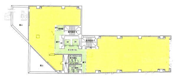
  • 2F

    2F

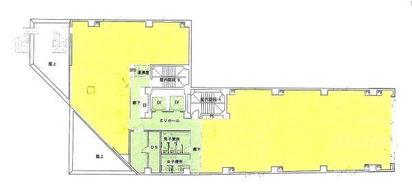
  • 4F

    4F

  • 5F

    5F

  • 6F

    6F

  • 7F

    7F

  • 8F

    8F

  • B2F

    B2F

内見やお見積りなどの各種お問い合わせ

全物件
仲介手数料無料
仲介から
入居工事まで
ワンストップで対応
経験豊富なスタッフが
スピード感をもって
対応

周辺での似た条件の物件

非公開物件 多数あり!

お問い合わせフォーム