takeofficeなら掲載物件の仲介手数料は無料です

日本生命三田ビル(ランドル高輪ゲートウェイ)

住所 東京都港区三田3-9-11
交通 都営浅草線泉岳寺」 徒歩2分
JR山手線高輪ゲートウェイ」 徒歩9分
都営三田線三田」 徒歩11分
竣工 1985年02月 構造 SRC
規模 地上8階, 地下1階 耐震基準 新耐震基準
床構造 フリーアクセス 70mm 空調設備 セントラル空調
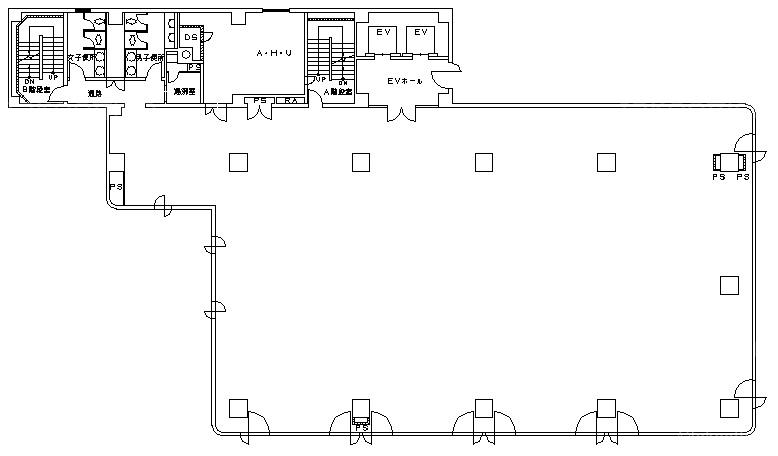
天井高 2380mm 基準階面積 252.97坪(836.26m2)
コンセント容量 - 施工会社

最新の募集状況や類似物件については、
こちらにお問い合わせください。

日本生命三田ビル(ランドル高輪ゲートウェイ) 外観

外観

内見やお見積りなどの各種お問い合わせ

全物件
仲介手数料無料
仲介から
入居工事まで
ワンストップで対応
経験豊富なスタッフが
スピード感をもって
対応

周辺での似た条件の物件

非公開物件 多数あり!

お問い合わせフォーム