takeofficeなら掲載物件の仲介手数料は無料です

ニッテン三田ビル

住所 東京都港区三田3-12-14
交通 都営浅草線泉岳寺」 徒歩6分
JR山手線田町」 徒歩7分
竣工 1977年03月 構造 -
規模 地上9階, 地下0階 耐震基準 旧耐震基準
床構造 フリーアクセス 50mm 空調設備 個別空調
天井高 2450mm 基準階面積 135坪(449m2)
コンセント容量 - 施工会社

最新の募集状況や類似物件については、
こちらにお問い合わせください。

ニッテン三田ビル 外観

外観

  • NOW PRINTING

    エントランス

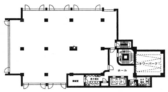
  • 基準階

    基準階

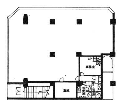
  • 1F

    1F

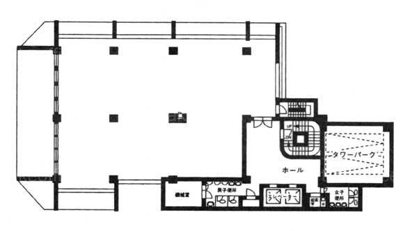
  • 3F

    3F

内見やお見積りなどの各種お問い合わせ

全物件
仲介手数料無料
仲介から
入居工事まで
ワンストップで対応
経験豊富なスタッフが
スピード感をもって
対応

周辺での似た条件の物件

非公開物件 多数あり!

お問い合わせフォーム