takeofficeなら掲載物件の仲介手数料は無料です

三田MTビル

住所 東京都港区三田3-13-12
交通 都営浅草線三田」 徒歩6分
JR山手線田町」 徒歩8分
竣工 1974年09月 構造 SRC
規模 地上11階, 地下1階 耐震基準 新耐震基準
床構造 フリーアクセス 70mm 空調設備 ゾーン空調
天井高 2580mm 基準階面積 429.31坪(1419.22m2)
コンセント容量 60VA/m2 施工会社

最新の募集状況や類似物件については、
こちらにお問い合わせください。

三田MTビル 外観

外観

  • 三田MTビル エントランス写真

    エントランス

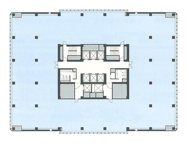
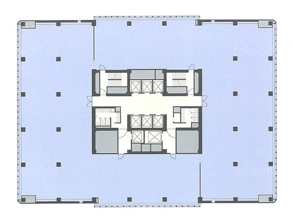
  • 基準階(5~10F)

    基準階(5~10F)

  • 1F

    1F

  • 2~3F

    2~3F

  • 4F

    4F

  • 11F

    11F

建物パンフレット

建物パンフレットは作成時点のものであり、また計画段階のものも含まれる為、実際とは異なる場合がございます。

内見やお見積りなどの各種お問い合わせ

全物件
仲介手数料無料
仲介から
入居工事まで
ワンストップで対応
経験豊富なスタッフが
スピード感をもって
対応

周辺での似た条件の物件

非公開物件 多数あり!

お問い合わせフォーム