takeofficeなら掲載物件の仲介手数料は無料です

久保ビル

住所 東京都港区三田5-2-32
交通 東京メトロ南北線白金高輪」 徒歩10分
竣工 1985年03月 構造 RC
規模 地上5階, 地下0階 耐震基準 新耐震基準
床構造 - 空調設備 -
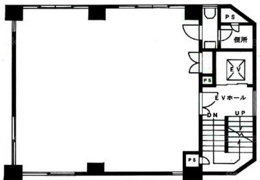
天井高 - 基準階面積 20坪(66m2)
コンセント容量 - 施工会社

最新の募集状況や類似物件については、
こちらにお問い合わせください。

久保ビル 外観

外観

  • NOW PRINTING

    エントランス

内見やお見積りなどの各種お問い合わせ

全物件
仲介手数料無料
仲介から
入居工事まで
ワンストップで対応
経験豊富なスタッフが
スピード感をもって
対応

周辺での似た条件の物件

非公開物件 多数あり!

お問い合わせフォーム