takeofficeなら掲載物件の仲介手数料は無料です

三田網町ビル

住所 東京都港区三田2-7-22
交通 都営大江戸線赤羽橋」 徒歩6分
都営三田線芝公園」 徒歩9分
都営浅草線三田」 徒歩10分
竣工 2009年10月 構造 鉄骨造
規模 地上4階, 地下1階 耐震基準 新耐震基準
床構造 フリーアクセス 空調設備 個別空調
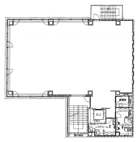
天井高 2800mm 基準階面積 83.47坪(275.93m2)
コンセント容量 80VA/m2 施工会社

最新の募集状況や類似物件については、
こちらにお問い合わせください。

三田網町ビル 外観

外観

  • 三田網町ビル エントランス写真

    エントランス

  • 基準階(2~4F)

    基準階(2~4F)

  • 1F

    1F

内見やお見積りなどの各種お問い合わせ

全物件
仲介手数料無料
仲介から
入居工事まで
ワンストップで対応
経験豊富なスタッフが
スピード感をもって
対応

周辺での似た条件の物件

非公開物件 多数あり!

お問い合わせフォーム