takeofficeなら掲載物件の仲介手数料は無料です

有栖川ナショナルコートビル

住所 東京都港区元麻布2-1-20
交通 東京メトロ日比谷線六本木」 徒歩9分
東京メトロ日比谷線広尾」 徒歩10分
竣工 1974年01月 構造 SRC
規模 地上10階, 地下1階 耐震基準 旧耐震基準
床構造 - 空調設備 セントラル空調
天井高 - 基準階面積 --
コンセント容量 - 施工会社

最新の募集状況や類似物件については、
こちらにお問い合わせください。

有栖川ナショナルコートビル 外観

外観

  • 有栖川ナショナルコートビル エントランス写真

    エントランス

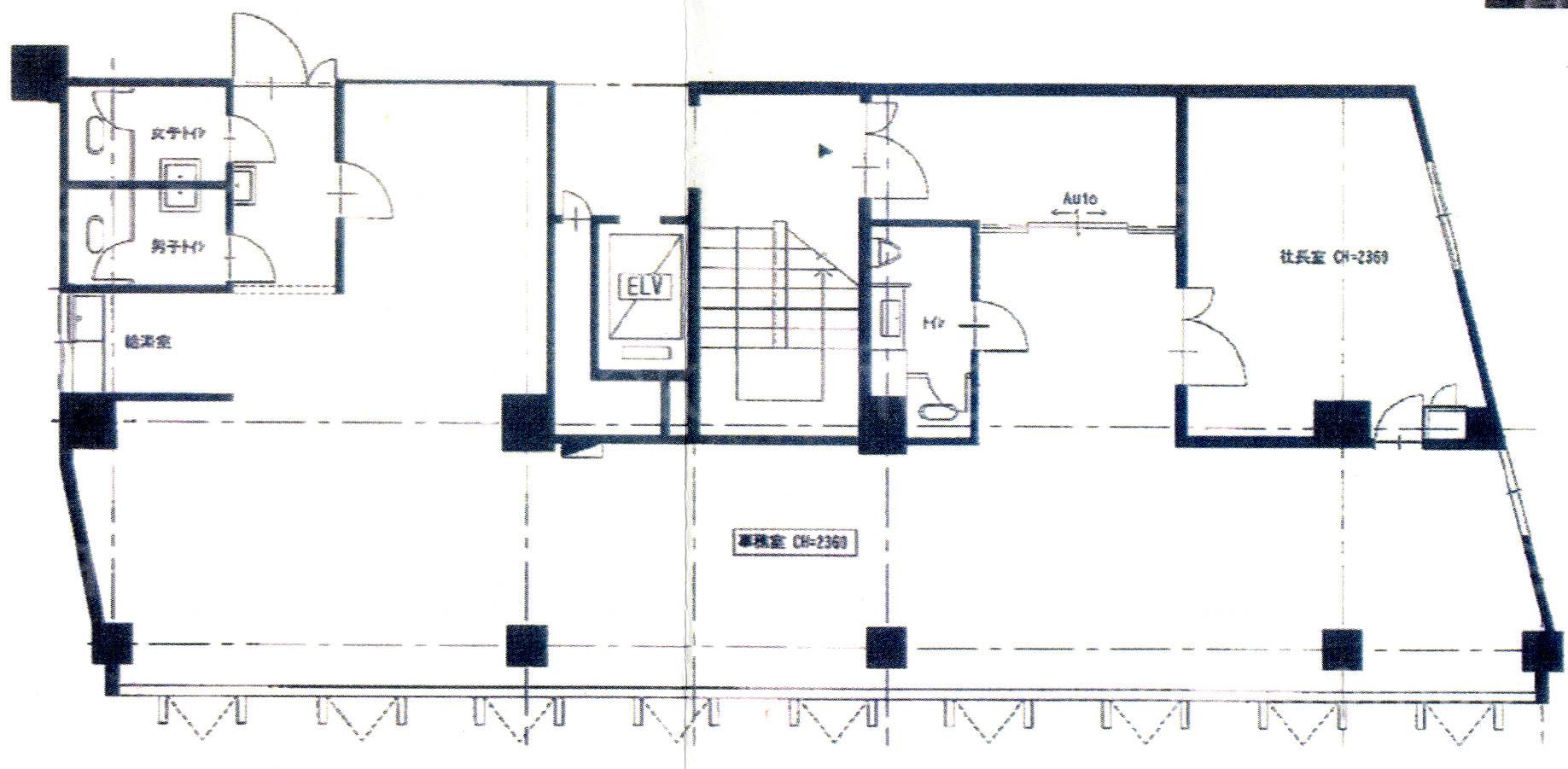
  • 2F

    2F

内見やお見積りなどの各種お問い合わせ

全物件
仲介手数料無料
仲介から
入居工事まで
ワンストップで対応
経験豊富なスタッフが
スピード感をもって
対応

周辺での似た条件の物件

非公開物件 多数あり!

お問い合わせフォーム