takeofficeなら掲載物件の仲介手数料は無料です

南麻布古川ビル

住所 東京都港区南麻布1-6-8
交通 都営大江戸線麻布十番」 徒歩4分
竣工 1988年08月 構造 RC
規模 地上7階 耐震基準 新耐震基準
床構造 フリーアクセス 50mm 空調設備 個別空調
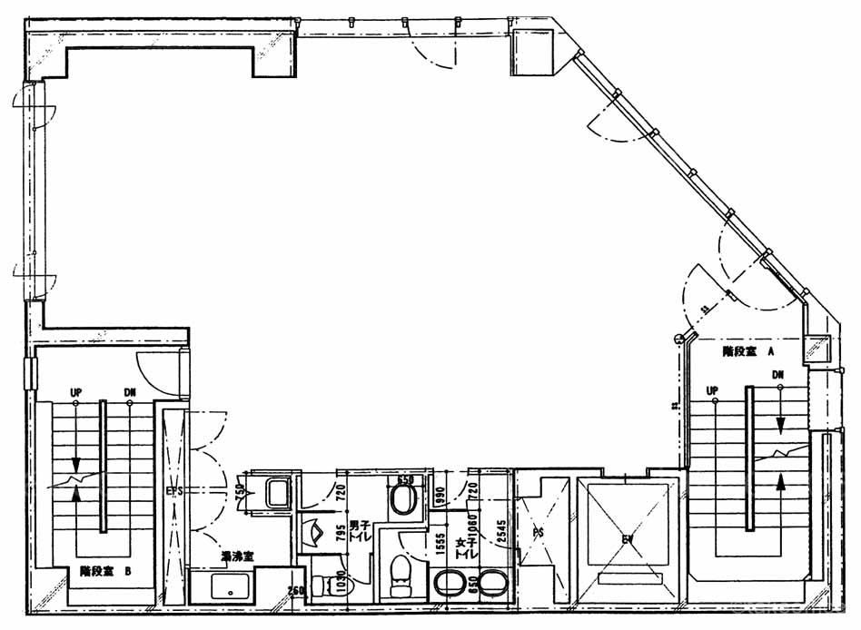
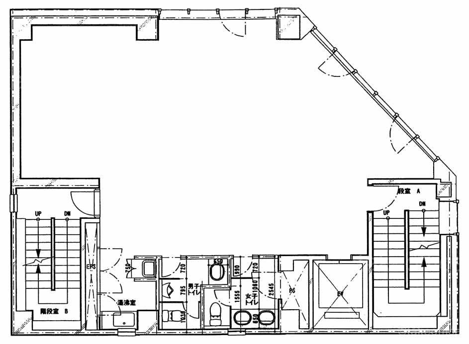
天井高 2410mm 基準階面積 32.88坪(108.69m2)
コンセント容量 - 施工会社

最新の募集状況や類似物件については、
こちらにお問い合わせください。

南麻布古川ビル 外観

外観

  • NOW PRINTING

    エントランス

  • 2F

    2F

  • 1F

    1F

  • 3F

    3F

  • 4F

    4F

  • 5F

    5F

  • 6F

    6F

  • 7F

    7F

内見やお見積りなどの各種お問い合わせ

全物件
仲介手数料無料
仲介から
入居工事まで
ワンストップで対応
経験豊富なスタッフが
スピード感をもって
対応

周辺での似た条件の物件

非公開物件 多数あり!

お問い合わせフォーム