takeofficeなら掲載物件の仲介手数料は無料です

オーク南麻布ビルディング

住所 東京都港区南麻布3-19-23
交通 都営三田線白金高輪」 徒歩10分
東京メトロ日比谷線広尾」 徒歩12分
竣工 1985年04月 構造 SRC+RC
規模 地上14階, 地下1階 耐震基準 新耐震基準
床構造 フリーアクセス 50mm 空調設備 個別空調
天井高 2550mm 基準階面積 102.13坪(337.62m2)
コンセント容量 - 施工会社 大林組

最新の募集状況や類似物件については、
こちらにお問い合わせください。

オーク南麻布ビルディング 外観

外観

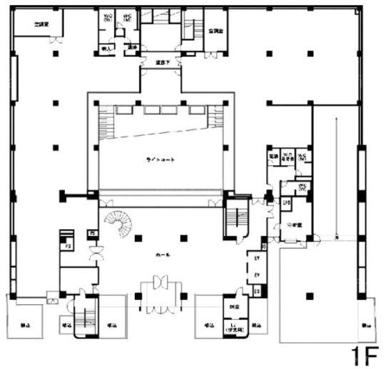
建物パンフレット

建物パンフレットは作成時点のものであり、また計画段階のものも含まれる為、実際とは異なる場合がございます。

内見やお見積りなどの各種お問い合わせ

全物件
仲介手数料無料
仲介から
入居工事まで
ワンストップで対応
経験豊富なスタッフが
スピード感をもって
対応

周辺での似た条件の物件

非公開物件 多数あり!

お問い合わせフォーム