takeofficeなら掲載物件の仲介手数料は無料です

フォーサイト南麻布(旧:広尾アルファビル)

住所 東京都港区南麻布4-5-48
交通 東京メトロ日比谷線広尾」 徒歩5分
竣工 1992年03月 構造 SRC
規模 地上5階 耐震基準 新耐震基準
床構造 フリーアクセス 70mm 空調設備 個別空調
天井高 2500mm 基準階面積 110坪(363.64m2)
コンセント容量 40VA/m2 施工会社

最新の募集状況や類似物件については、
こちらにお問い合わせください。

フォーサイト南麻布(旧:広尾アルファビル) 外観

外観

  • NOW PRINTING

    エントランス

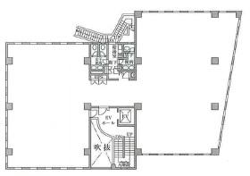
  • 基準階

    基準階

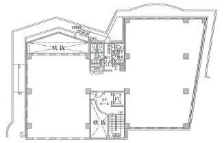
  • 2F

    2F

内見やお見積りなどの各種お問い合わせ

全物件
仲介手数料無料
仲介から
入居工事まで
ワンストップで対応
経験豊富なスタッフが
スピード感をもって
対応

周辺での似た条件の物件

非公開物件 多数あり!

お問い合わせフォーム