takeofficeなら掲載物件の仲介手数料は無料です

ダイアビル

住所 東京都港区麻布十番2-13-4
交通 都営大江戸線麻布十番」 徒歩2分
都営大江戸線赤羽橋」 徒歩11分
東京メトロ日比谷線六本木」 徒歩13分
竣工 1993年 構造 RC
規模 地上6階, 地下0階 耐震基準 新耐震基準
床構造 - 空調設備 個別空調
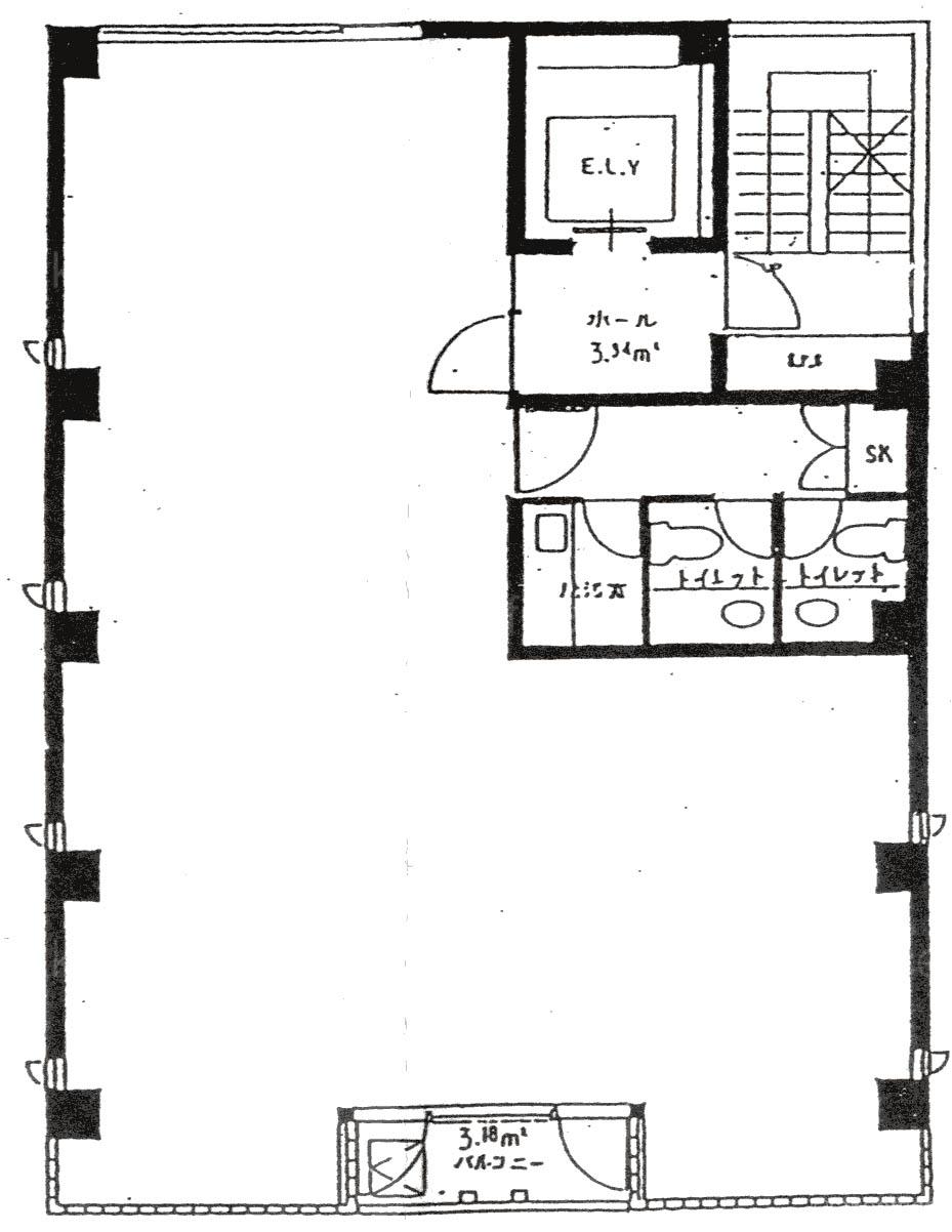
天井高 - 基準階面積 32.52坪(107.5m2)
コンセント容量 - 施工会社

最新の募集状況や類似物件については、
こちらにお問い合わせください。

ダイアビル 外観

外観

  • NOW PRINTING

    エントランス

  • 2F

    2F

内見やお見積りなどの各種お問い合わせ

全物件
仲介手数料無料
仲介から
入居工事まで
ワンストップで対応
経験豊富なスタッフが
スピード感をもって
対応

周辺での似た条件の物件

非公開物件 多数あり!

お問い合わせフォーム