takeofficeなら掲載物件の仲介手数料は無料です

仙台坂オークヒルズ

住所 東京都港区麻布十番3-11-12
交通 東京メトロ南北線麻布十番」 徒歩3分
竣工 1987年10月 構造 SRC
規模 地上9階, 地下1階 耐震基準 新耐震基準
床構造 - 空調設備 -
天井高 - 基準階面積 --
コンセント容量 - 施工会社

最新の募集状況や類似物件については、
こちらにお問い合わせください。

仙台坂オークヒルズ 外観

外観

  • 仙台坂オークヒルズ エントランス写真

    エントランス

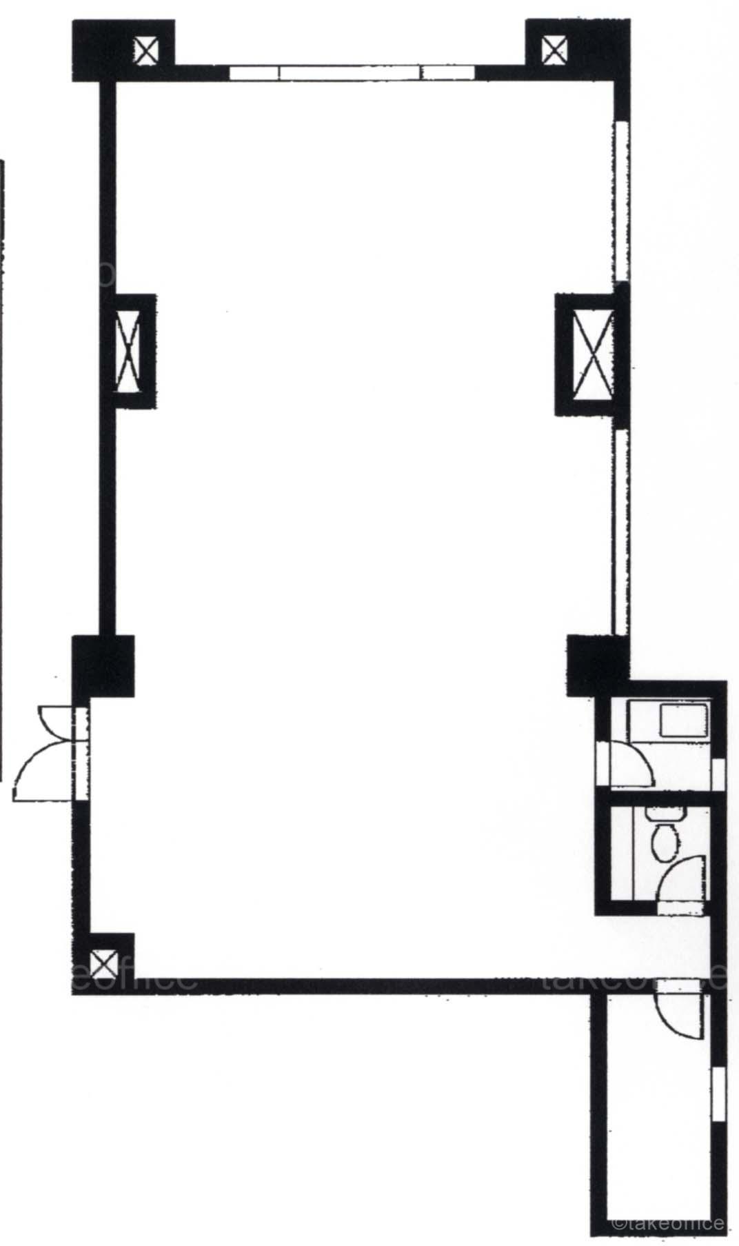
  • 1-D

    1-D

内見やお見積りなどの各種お問い合わせ

全物件
仲介手数料無料
仲介から
入居工事まで
ワンストップで対応
経験豊富なスタッフが
スピード感をもって
対応

周辺での似た条件の物件

非公開物件 多数あり!

お問い合わせフォーム