takeofficeなら掲載物件の仲介手数料は無料です

三和港南ビル

住所 東京都港区港南2-4-3
交通 JR山手線品川」 徒歩3分
京浜急行品川」 徒歩5分
竣工 1999年11月 構造 鉄骨造
規模 地上8階, 地下0階 耐震基準 新耐震基準
床構造 フリーアクセス 75mm 空調設備 個別空調
天井高 2575mm 基準階面積 113.23坪(374.31m2)
コンセント容量 50VA/m2 施工会社

最新の募集状況や類似物件については、
こちらにお問い合わせください。

三和港南ビル 外観

外観

  • 三和港南ビル エントランス写真

    エントランス

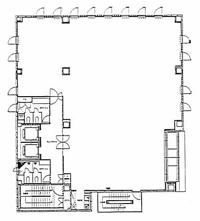
  • 基準階(2~4F)

    基準階(2~4F)

  • 1F

    1F

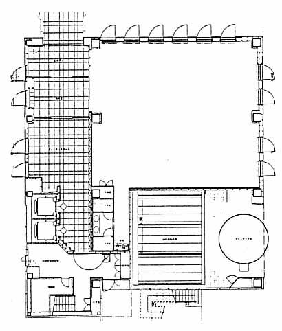
  • 5F

    5F

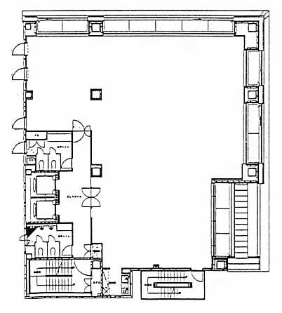
  • 6F

    6F

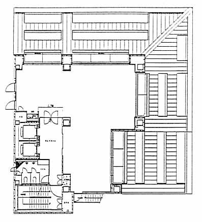
  • 7F

    7F

  • 8F

    8F

内見やお見積りなどの各種お問い合わせ

全物件
仲介手数料無料
仲介から
入居工事まで
ワンストップで対応
経験豊富なスタッフが
スピード感をもって
対応

周辺での似た条件の物件

非公開物件 多数あり!

お問い合わせフォーム