takeofficeなら掲載物件の仲介手数料は無料です

オリックス品川ビル

住所 東京都港区港南2-5-3
交通 JR山手線品川」 徒歩1分
京浜急行品川」 徒歩5分
竣工 2006年06月 構造 鉄骨造
規模 地上9階, 地下1階 耐震基準 新耐震基準
床構造 フリーアクセス 100mm 空調設備 ゾーン空調
天井高 2750mm 基準階面積 190.64坪(630.21m2)
コンセント容量 50VA/m2 施工会社 鹿島建設

最新の募集状況や類似物件については、
こちらにお問い合わせください。

オリックス品川ビル 外観

外観

  • オリックス品川ビル エントランス写真

    エントランス

  • 基準階(3~9F)

    基準階(3~9F)

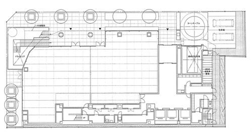
  • 1F

    1F

  • 2F

    2F

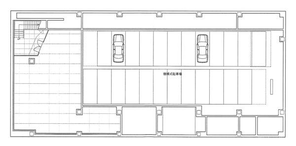
  • B1F

    B1F

建物パンフレット

建物パンフレットは作成時点のものであり、また計画段階のものも含まれる為、実際とは異なる場合がございます。

内見やお見積りなどの各種お問い合わせ

全物件
仲介手数料無料
仲介から
入居工事まで
ワンストップで対応
経験豊富なスタッフが
スピード感をもって
対応

周辺での似た条件の物件

非公開物件 多数あり!

お問い合わせフォーム